Project planning
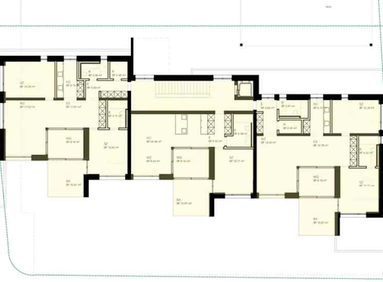
Propriété avec 2 immeubles résidentiels / 6340 Baar
- Nouvelle construction Deux immeubles résidentiels 
- Adresse 6340 Baar 
- Terrain GS 304, 1337 m², zone résidentielle W3, indice d’utilisation 0.6 
- Étude 2 immeubles résidentiels avec 14 logements au total, parking visiteurs 23 PP 
 
  
        
      
    
    
       
  
        
      
    
    
       
  
              
            
             
  
              
            
             
  
              
            
             
  
              
            
             
  
              
            
            